
Client | Servicios Turísticos y Hoteleros Las Cascadas S.A. de C.V. |
---|---|
Location | Tegucigalpa, Honduras |
Tags | Hospitality |
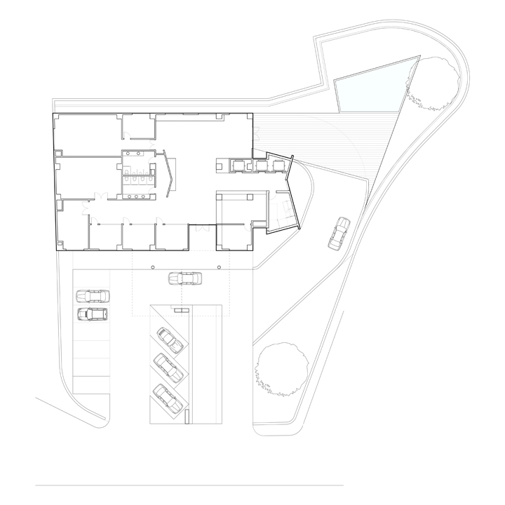
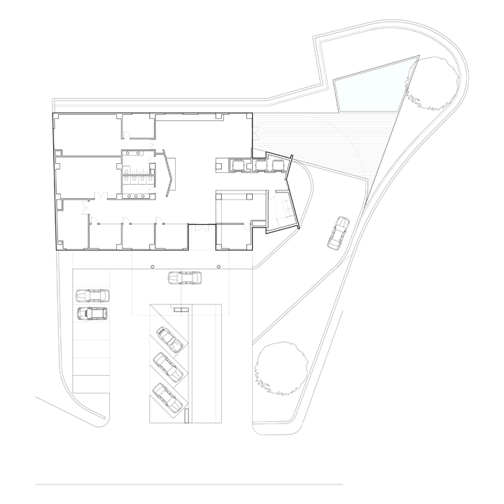
The site of this hotel is situated along the Boulevard de las Fuerzas Armadas in Tegucigalpa, a roadway that is one of the major connections between the northwest and southeast regions of Honduras.
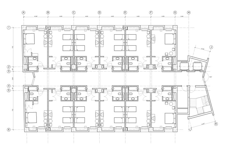
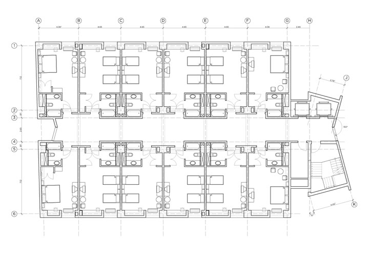
The hotel overlooks the city's largest shopping center, providing services, restaurants, entertainment, and other amenities to its guests. The building is situated as far as possible from the boulevard. This approach leaves an area for a porte-cochère and a pedestrian link from a nearby transit stop to the lobby. The hotel has ninety-six rooms on eight upper floors. The ground level houses the lobby, two business centers, a small retail area, a breakfast lounge, and a pool. The hotel tower sits on two levels of parking below ground. Its volume is extremely simple, with three key sculptural elements: the entrance canopy, the circulation tower, and the hotel's deep-set façade. Windows are recessed to create strong shadow lines and protect against the region's intense light. The wall's thickness absorbs the eighty-centimeter structural columns and provides areas for small built-in workstations. Its thickness also leaves the room's interior precisely rectangular, a spatially pure volume.