
Client | Fernando Paiz |
---|---|
Location | San Jose, Guatemala |
Tags | Residential |
Status | Completed 2009 |
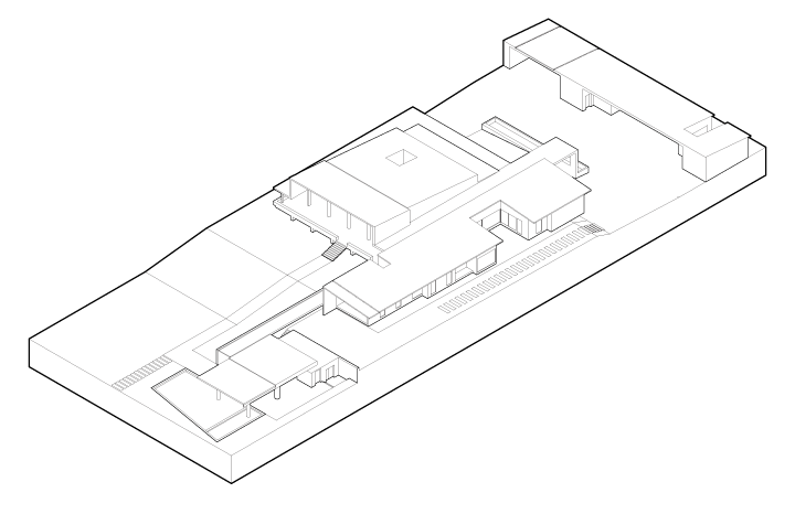
Located on the Pacific coast of Guatemala near the small city of San José, this beach house engages with its ocean-side site and the local climate. The house uses traditional materials of the region in a contemporary manner and with ecologically sensitive goals. Wooden screens protect outdoor rooms and the mass of the house from summer solar gain, while opening up spaces to views and the prevailing winds.
Through a series of passive design techniques and the house's organization, the building responds to its particular climate in order to increase the comfort of its residents while reducing its energy consumption. Only sleeping rooms will have air conditioning, the rest of the house will be naturally ventilated. Other environmentally sensitive considerations have been made, including the use of wooden doors that are recycled from old villas in the region. The contemporary forms of the house are rooted in analysis of the site views, patterns of light and wind, and connections between enclosed and outdoor spaces. Rooms open to central courtyard spaces as well as verandahs for increased light and ventilation. The house cascades towards the beach through a series of elements, including a lap pool, cabana, and children's pool.