
Client | University of Massachusetts, Boston |
---|---|
Location | Boston, MA |
Tags | Academic |
Status | In progress |
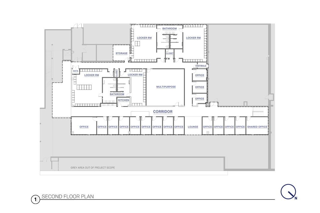
As part of Title IX programs at the University of Massachusetts Boston, OverUnder and West Work are upgrading the existing Clark Athletic Center. The project balances access to equitable facilities for women’s and men’s sports. New locker rooms, a multipurpose hall, a lounge, and a bank of coaching offices provide students with support in one central, coherent space. A CNC-milled wood wall animates the main lobby with large-scale, abstracted images of athletes in movement. Special challenges of the existing 1970s building include post-tensioned slabs, the effects of the site’s sinking landfill, and aging building systems. The team is addressing these while making a space that can build pride in the UMB athletics program, working closely with the athletics director, facilities manager, campus planning, and campus facilities. The renovations and adaptations are coordinated with two other projects by our team, upgrades to the softball field outside and a new entry.