
Location | United Arab Emirates |
---|---|
Tags | Residential |
Status | Ongoing |
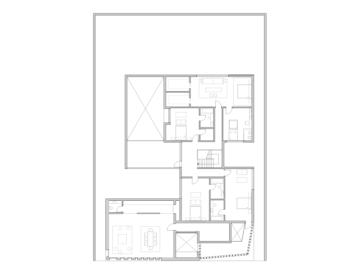
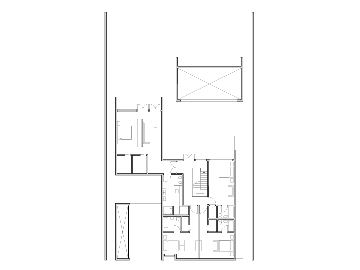
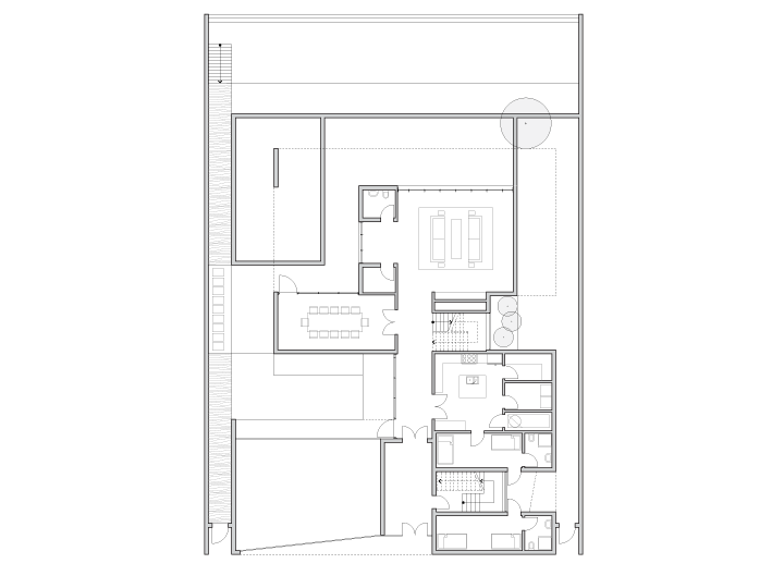
As part of our ongoing research in the United Arab Emirates, these three prototypes investigate an emerging typology in the region—the individual plot with a high degree of privacy. This housing typology requires a fairly hermetic exterior, while a strategic deployment of screens, internal openings, and light scoops maintain access to light, air, and the environment.